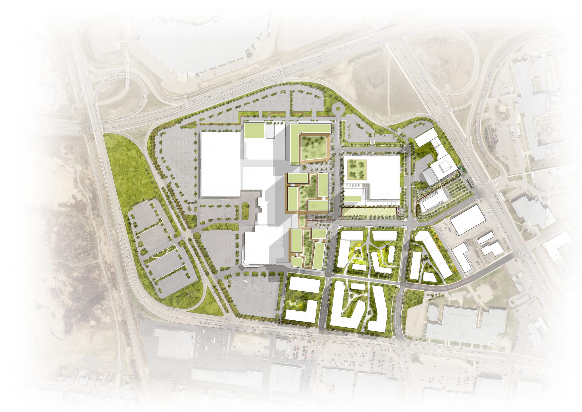
PLAN DIRECTEUR - FLEUR DE LYS
DÉVELOPPEMENT PLACE FLEUR DE LYS
C'est avec une grande joie que nous nous associons à nouveau avec le groupe Trudel Alliance pour la mise en œuvre du projet Fleur de Lys : le milieu de vos vies. Ce futur espace de vie promet d'être un pôle d'attraction pour la communauté locale, célébrant l'attachement profond de la population envers le lieu et son histoire.
Place Fleur de Lys sera un espace accessible, animé et vivant, ancré dans l'histoire et la culture de notre communauté. Il s'agit d'un héritage important qui redéfinira l'entrée de la ville de Québec, en mélangeant l'esprit événementiel à des espaces verts et conviviaux pour la vie quotidienne. Cette importante requalification du centre commercial permettra de créer un milieu de vie centré sur les échanges culturels, artistiques, commerciaux et sociaux.
En s'associant à Trudel Alliance, nous avons l'occasion de réaliser cette vision, en alliant nos forces, nos expertises et nos passions pour l'architecture et le développement urbain. Ensemble, nous sommes fiers de contribuer à l'évolution de la ville de Québec et à la réalisation de ce projet novateur. Place Fleur de Lys sera le témoignage de notre engagement commun envers la création de milieux de vie dynamiques, durables et tournés vers l'avenir.
Pour en savoir plus | www.fleurdelys.com





